収入と節税がキーワードの有効活用!
遊ばせている土地が、大きな資産として蘇ります
あなたの所有している土地の広さや形状でプランは様々です
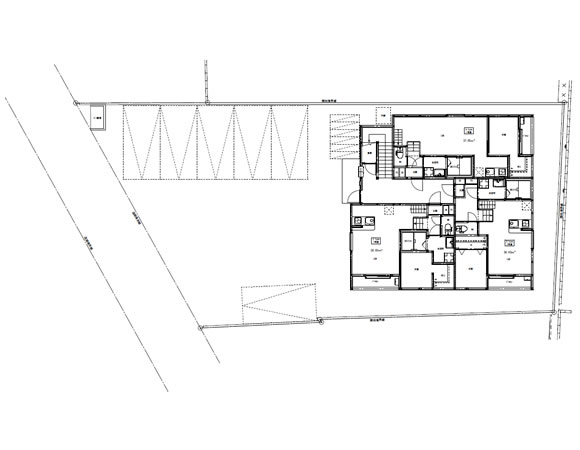
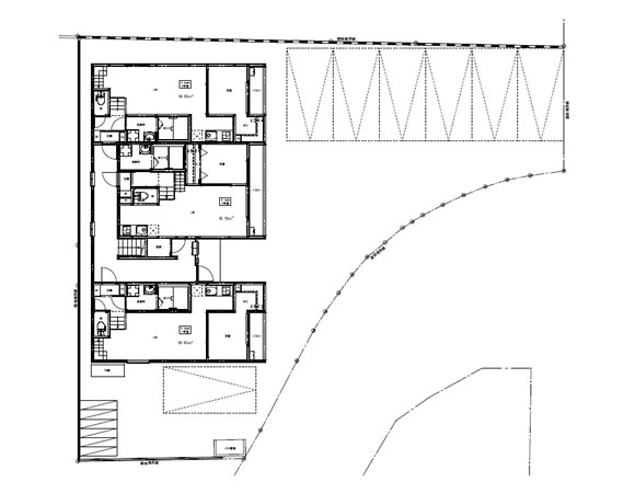
75apartment.の有効活用参考プラン
木造2階建て6世帯
ロフト付スキップフロアタイプ+駐車場6台
-
整形地パターン:面積(㎡/坪):420.90㎡/127坪

道路に面した間口も広く、設計の自由度が確保されている、アパート建築には最適な土地形状。
-
不整形地パターン:面積(㎡/坪):407.46㎡/123坪

三角形(角地)の土地に生まれるデッドスペースを極力少なくし有効的な活用を可能にしたプラン。
土地の有効活用をお考えの地主さんに、75apartment.をご提案。
土地の形状は、固定資産税などの評価額にも影響し、 何もせず遊ばせているのは、 支出が増えるだけです。
活用次第で、支払う税金以上の収入を確保でき、さらに資産が形成できる賃貸建物によるアパート経営をはじめましょう。
-

事業計画のご提案
ヒアリング
土地診断
市場調査
事業シミュレーション
融資申請
事業計画書は、金融機関に申請する融資対応のためだけではなく、よりリアルな空室下落率や公租公課・管理費などの支出にいたるまで、長期のアパート運営を左右する指標となりますので、十分に理解することが重要です。
-

設計・デザイン・建築のご提案
設計プラン・デザイン
各種申請・手続き
施行
検査
お引き渡し
75apartment.の建築では、着工から竣工にいたる期間の各工程を現場責任者が管理し、徹底した品質管理・工程管理に努め、オーナーの資産を長く維持できる建物をご提案いたします。
-

管理・運営のご提案
賃貸管理契約の手続き(一般・サブリース)
入居者募集・審査・契約
トラブル、クレーム対応
建物保守・メンテナンス
資産管理サポート
「パートナーの実力差が将来の格差」につながる管理は、賃貸経営成功のキーとなる業務です。20年30年と長期にわたって競争力を維持していくために「質の高い管理」で安定した経営をサポートいたします。
75apartment.の
管理サービスと保証制度はコチラ
75apartment.の管理サービスと保証制度
管理業務
- 家賃入金確認・送金
- 収支明細書作成・報告
- 家賃滞納者への督促
- 退去時の解約金清算
- トラブル・クレーム対応
メンテナンス業務
- 建物、共用部の清掃・点検
- 入退去に伴うリフォーム
- 建物の保存、修繕工事
- 設備機器類の故障対応
賃貸業務
- 入居者の募集および審査
- 他の仲介業者との空室物件の共有
- 契約書類作成および契約
- 管理物件のWEBサイト登録と運用
地盤建物保証
不同沈下の発生により建物に被害がでた場合、修復工事を行います。(建物のお引き渡しの翌日から20年間の保証)
初回満室保証
建物のお引き渡し時に空室があっても、全ての住戸において初回の入居がご成約になるまで、最大1年間で家賃を100%保証します。
家賃滞納保証
景気状況の悪化などから家賃の滞納や遅延が発生した場合でも、最長6ヶ月間100%家賃を保証します。
家賃保証
(サブリース契約)
75apartment.では、一般管理契約が原則ですが、土地所有者の管理契約においては、家賃保証(サブリース契約)のご案内もございます。詳細は、営業担当へお尋ねください。
賃貸経営が土地の有効活用に適している理由
土地をただ所有しているだけでは、支出が増えるだけ。賃貸経営は、資産を守り土地所有者の目的を解決してくれる有効的な手段です。
安定した家賃収入が見込める
安定した家賃収入を長期間得ることから所有する資産を守り、効率的に資産形成できる強みが賃貸経営です。
そのためにも賃貸市場のニーズを十分に把握し、それ以上の建物を提供することで、より確実な運営が期待できます。
有効的な税務対策が期待できる
-
【固定資産税】
毎年1月1日に支払い義務が発生する固定資産税。所有している更地にアパートを建てることにより、固定資産税の場合、アパートの敷地200平方メートル以下の部分は、課税標準額の6分の1に、200平方メートルを超える部分は、3分の1まで減税措置が受けられます。
-
【所得税】
家賃収入を得る賃貸経営には、不動産所得に対し所得税が発生します。仮に土地所有者が給与所得や事業所得など他の所得がある場合、合算( 損益通算) して確定申告をする必要があります。事業である賃貸経営には、必要経費として計上できる減価償却費をはじめ修繕費、交通費、広告費、公租公課、管理料、保険料などが経費として計上できることから所得税の軽減につなげることができます。
-
【相続税】
計算が複雑で税率の高い相続税。相続税を節税するためには「相続財産の評価額を下げる」ことが有効的な手段です。また、遺産の総額が基礎控除額(3,000万円+600万円×法定相続人)を超えた場合に限り、相続税が発生します。アパートを建てることにより、いくら評価額が下がるのか、詳しくは担当までお尋ねください。
(相続が発生してから対策することができないので、早めの対応をおすすめします。
相続税評価額「現金」VS「不動産」
空き家を所有している方はご注意ください。
知らないと大損の可能性も!
2015年5月26日に施行された「空家等対策特別措置法」によって、特定空き家に認定されると、
土地にかかる固定資産税の優遇措置が適用されず、従来の土地の税金を最大6倍支払う必要が生じます。
※命令に違反した場合、50万円以下の過料に処せられ、強制撤去も可能となります
※空き家の解体には、自治体から50万円程度の補助金が受けられます
特定空き家に認定される空き家とは
- 倒壊や保安上の危険性がある物件
- 衛生環境が悪い物件
- 管理が行き届かず、景観を損なっている物件
- 放置することにより周辺の生活環境の保全ができなくなる物件
REALDESIGN APART
in Niigata Styles

防音・防犯対策の居住性に斬新なデザイン性。
そして、バルコニーを排除した新しい空間が土地の有効活用をさらにバックアップ!
世界に1つだけのオリジナル
RERALDESIGN APART建てませんか
所有されている土地には、75apartment.の標準 シリーズをご案内するのが一般的ですがお客様のご要望に応じて、世界に1つだけのオリジナルREALDESIGN APARTをデザイン・設計プランからご提案することが可能です。(オプション)
-
REALDESIGN APART
専属デザイナー
河野 雄紀
一からデザインする専属デザイナー
全国地方都市の不動産会社、ホームビルダー、建設会社が採用するREALDESIGN APARTのデザイナーが、立地の市場動向を踏まえお客様の要望を反映した世界に 1 つだけのオリジナルデザインのアパートをご提案します。
-
REALDESIGN APART
専属建築士
本田 浩之
一から設計する専属建築士
実績1,000棟以上を誇る専属建築士が土地の形状にあった最適なプランをご提案いたします。勿論、REALDESIGN APARTの標準仕様である居住性を高める防音防犯対策をはじめ、最先端の設備と保証制度で土地の有効的な活用をサポートします。
